

Envisioned as a connective “hub,” the NYC Fashion Center is located in the center of Manhattan’s Meatpacking District. Situated within walking distance to the smaller offices of the several fashion labels it will house, the new hub would serve as a social gathering place and a centralizing entity for those companies.

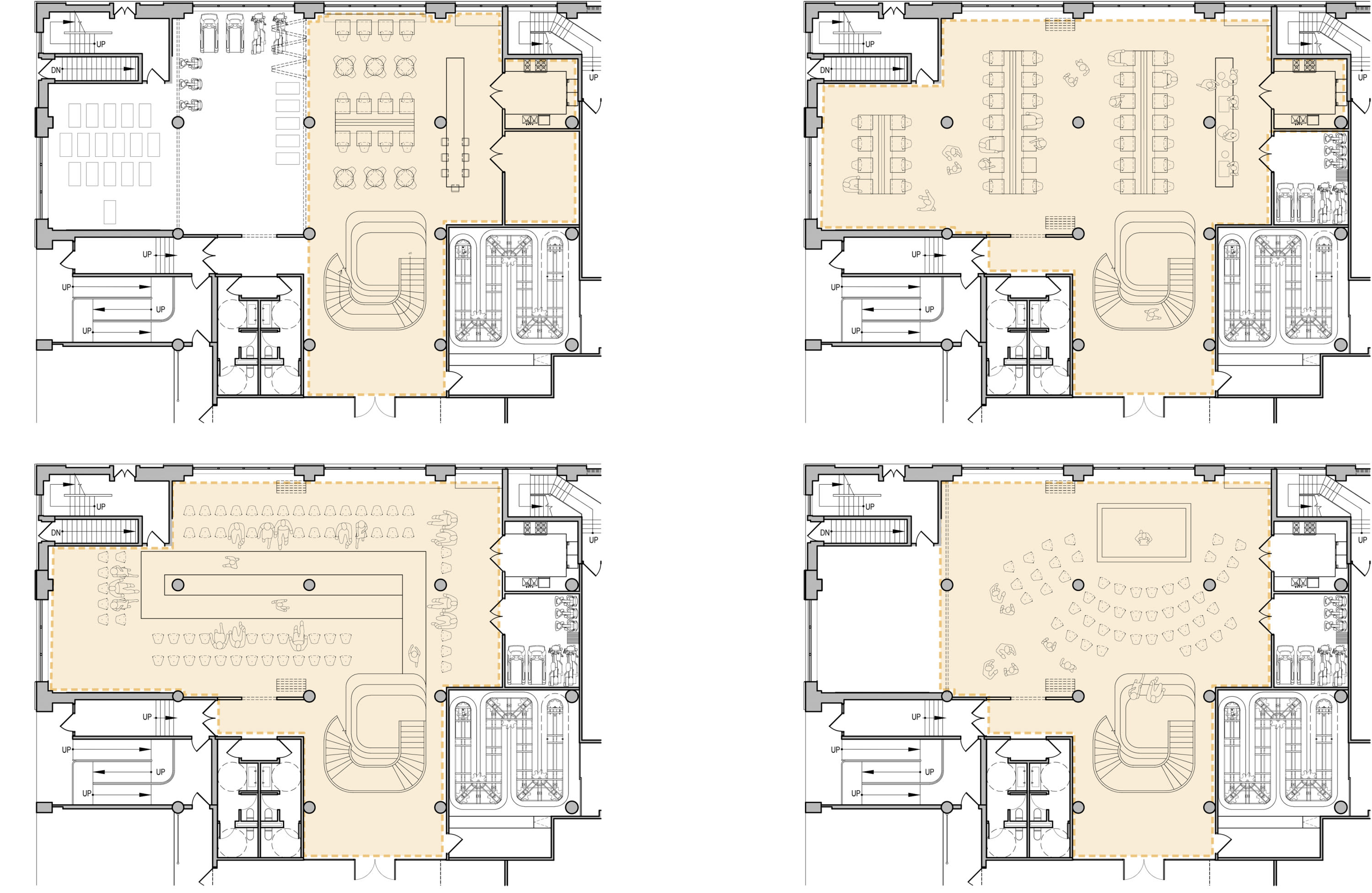
With the unique opportunity to mix the spaces of both production and creation, DXA proposed 60,000 sf of amenity spaces, prototyping facilities, and design studios spread across four floors. The ground floor is organized as a flexible, multi-use area that can function as amenity space for on-site employees, as well as informal and formal event space to welcome off-site employees. Kitchen and storage rooms are efficiently tucked away, allowing expandable partition walls to accommodate multiple spatial configurations, such as day-to-day cafe/ gym/ yoga rooms or larger-scale dining, runway show, or lecture/screening events.
A curved blackened steel stair acts as the connective tissue between the semi-public ground floor, the production floor, and designers’ studios and offices - spaces traditionally kept separate from one another. The stair bleeds out into flexible ‘buffer’ zones at each floor; the careful placement of cafe, lounge, and reception spaces creates open, dynamic, and fluid relationships vertically between floors, as well as horizontally between programs.






















